Go back

Ohio Valley History Conference

Austin Peay State University

October 3-5, 2024

Welcome

The conference will begin with a reception on Thursday (October 3). This reception will be held between 6pm-8pm at Holiday Inn Clarksville, 215 Cracker Barrel Drive, Clarksville, TN. The conference presentations will take place on Friday (October 4) and Saturday (October 5). At the end of the conference on Saturday, there will be a closing reception and networking event between 5:15pm-6:00pm. All locations are indicated on the conference program, which can be found below.

Conference Program

For the final conference program, click here.

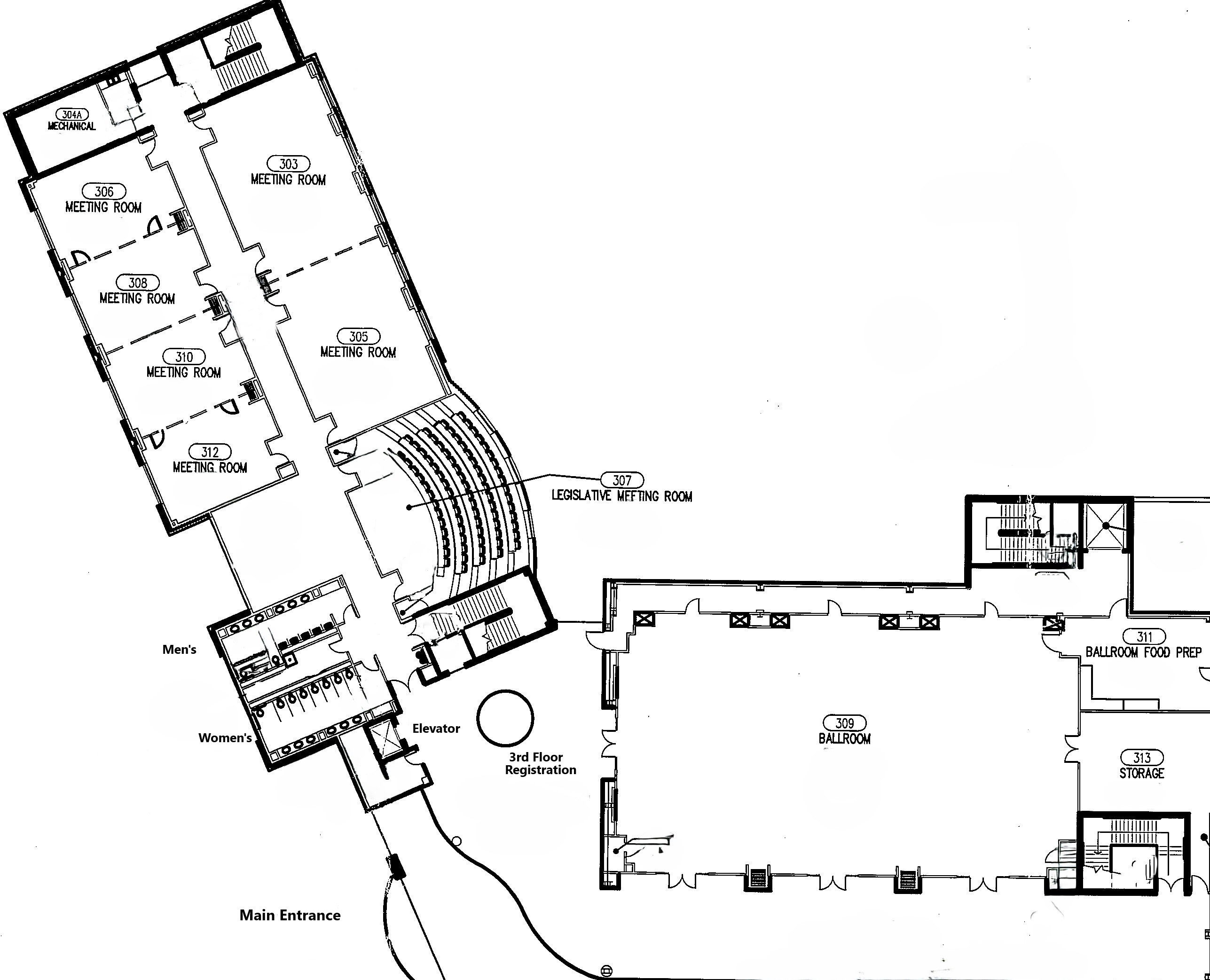
Morgan University Center

All conference panels will take place on the third floor of the Morgan University Center. For the map of the third floor, click here.

Registration

It will not be possible to pay for registration during the conference. All conference participants should collect the welcome packet at the registration desk. If you have any questions about registration, please contact Dr. Dzavid Dzanic (dzanicd@apsu.edu).

Parking

On October 4, conference participants can park in lot 30 without a permit. On October 5, conference participants can park in lot 40 without a reservation. The locations of these parking lots can be found on this map.